Магазин Офіс Приміщення 46кв.м. червона лінія Соборності 92
Детальніше
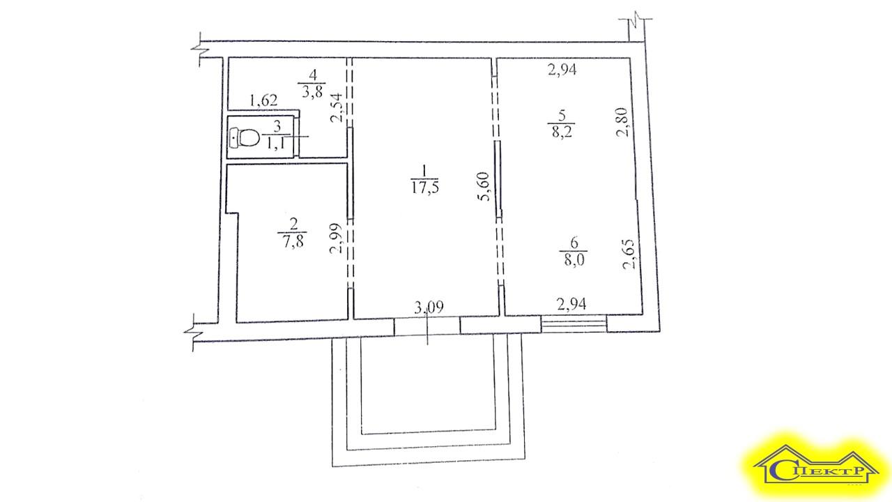
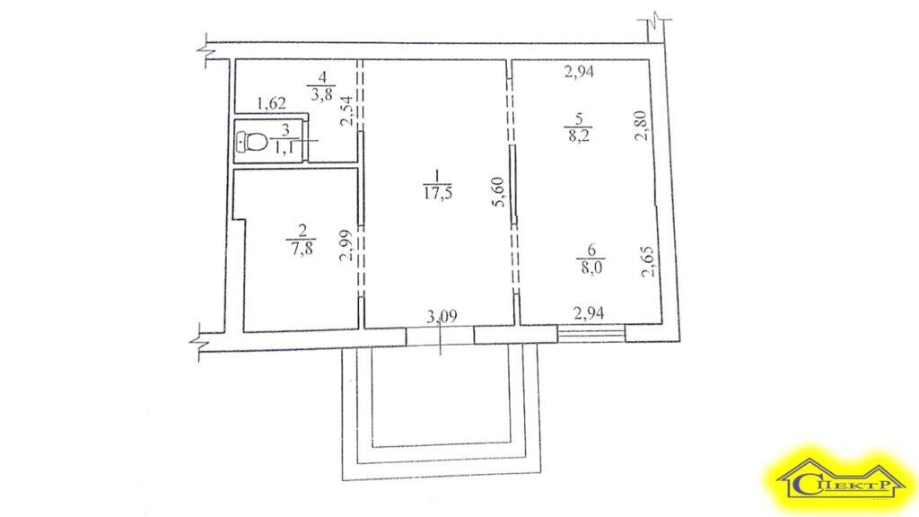
Пропонується в оренду.Нежитлове приміщення, вбудоване в 1/5поверхового., житлового будинку (магазин).Довгинцивський район ул.Косиора 92.Загальна площа: 46.4кв.м.Комунікації; електроенергія 2,4квт 380v, вода, каналізація, опалювання центральне.
Червона лінія.До зупинки траспорту 100 метрів.
Хороша видимість з проїжджої частини.Хороший пішохідний і автомобільний трафік.Оточення житлове, щільність населення висока.Вартість оренди 10 000грн. кому. Платежі.
- Тип угоди: Оренда
- Місто - Район: Кривий Ріг - Довгінцевський р-н
- Тип нерухомості: Комерційна
- Вид нерухомості: Об'єкти сфери послуг , Офісні , Торгівельні
- Поверх: 1
- Загальна площа: 46
- ID: 15570
- Published: 5 Січня, 2026
- Last Update: 5 Січня, 2026
- Views: 137